Showroom keuken 1
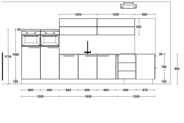
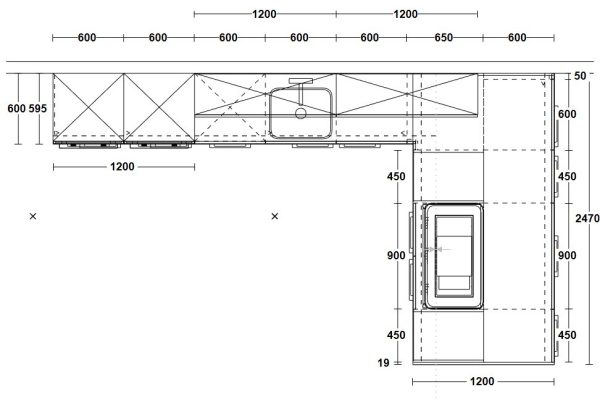
Deze zeer complete keuken combineert stijl en functionaliteit in één geheel. De lange zijde van maar liefst 425 cm biedt volop werk- en opbergruimte, terwijl het royale schiereiland van 247 x 120 cm de keuken een open en uitnodigende uitstraling geeft.
De halfhoge kasten zijn uitgerust met zowel een vriezer als een koeler, en daarnaast vind je er een oven en een combi-magnetron. Ook aan praktisch gemak is gedacht: de keuken beschikt over een vaatwasser, een brede 6-pits kookplaat van 90 cm en een moderne plafondafzuiger met plasmafilter.
Tekeningen
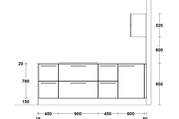
Het werkblad is uitgevoerd in stijlvol wit composiet, inclusief een naadloos ingelijmde spoelunit. De Grohe kokendwaterkraan voegt extra luxe en gebruiksgemak toe. De witte glazen achterwand maakt het geheel strak en tijdloos af.
Deze complete keuken is beschikbaar voor slechts € 10.000,- (exclusief montage).

















