Showroom keuken 2
Deze keuken in Japandi-stijl ademt rust en elegantie. De donkere houtlook geeft een warme, natuurlijke uitstraling, terwijl de strakke lijnen zorgen voor een moderne en minimalistische sfeer.
Het royale kookeiland vormt het hart van de ruimte en nodigt uit om samen te koken, te borrelen of gewoon gezellig aan te schuiven. Het geheel wordt afgewerkt met een prachtig groen marmeren blad, dat niet alleen luxe uitstraalt, maar ook een uniek en tijdloos karakter toevoegt.
Een perfecte balans tussen eenvoud, functionaliteit en verfijnde schoonheid.
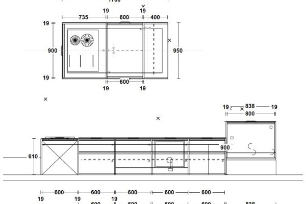
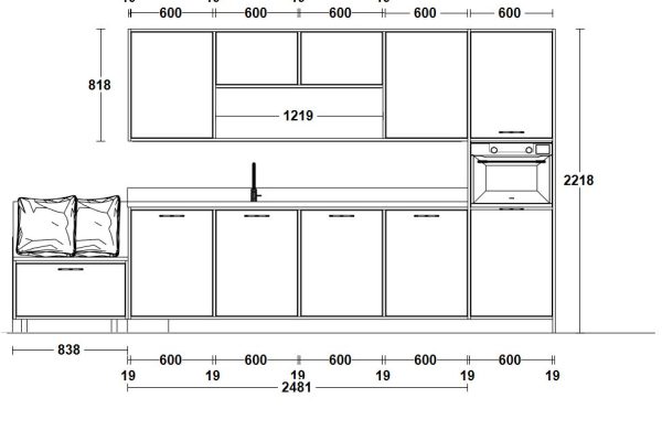
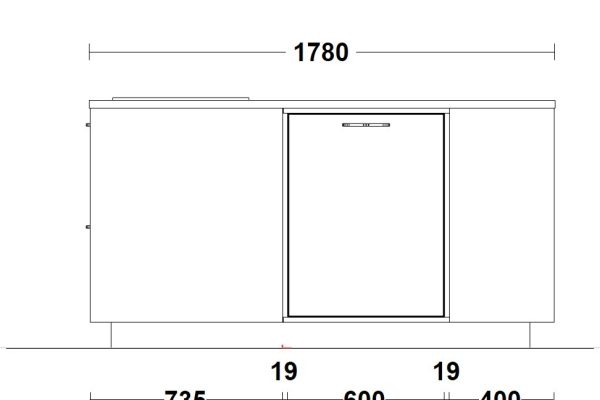
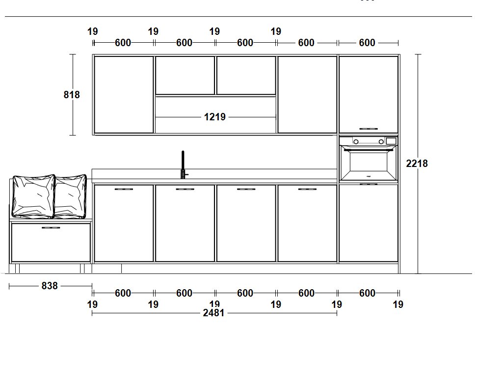
Tekeningen
De tekeningen geven een helder overzicht van de indeling en de maatvoering van deze keuken. Zo krijg je niet alleen een goed beeld van de stijl en uitstraling, maar ook van de praktische ruimte die de keuken biedt. Het kookeiland en de kastenwand zijn optimaal ingedeeld, waardoor er een fijne balans ontstaat tussen design en gebruiksgemak.
Deze complete keuken is beschikbaar voor slechts € 10.000,-
(exclusief montage).











