Showroom keuken 3 - Kleur bekennen!
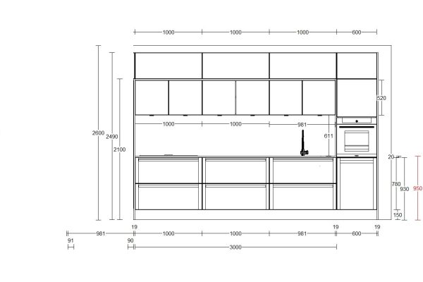
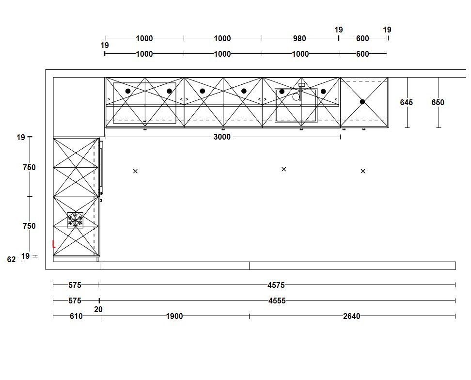
Deze keuken valt op door zijn opvallende kleuren en slimme indeling, met heel veel bergruimte voor al je keukenspullen. De twee hoge kasten van 75 cm breed zijn uitgevoerd in een frisse Coral-kleur en bieden ruimte aan een 70 cm brede koel-vrieskast en een 75 cm brede oven.
Onder de kasten vind je een drie-ladenkast van 100 cm, extra diep, uitgevoerd in een warme oranje tint met een geïntegreerde greeplijst. De hoge kast bevat een vaatwasser, combimagnetron en warmhoudlade, zodat al je apparaten netjes zijn geïntegreerd.
Tekeningen
De bovenkasten zijn greeploos en 300 cm breed, met daarboven vier diepe klepkasten voor extra opbergruimte. Het Dekton-aanrechtblad en de bijpassende achterwand maken het geheel strak en duurzaam. De keuken is verder voorzien van een kookplaat met geïntegreerde afzuiging.
Met zoveel kleur, bergruimte en apparaten biedt deze showroomkeuken alles wat je nodig hebt. Prijs: € 10.000,- (exclusief montage).
















