Showroom keuken 4 - Licht eiken laminaat
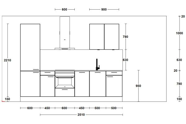
De keuken beschikt over een hoge kast met koel-vriescombinatie, meerdere onderkasten met lades en deuren, en een speciaal ingerichte kast met nis voor de oven. Er is een front voor een 45 cm brede vaatwasser, een kast voor de spoelbak en extra opbergruimte in een bovenkast van 90 cm breed met twee deuren en legplanken. De ingebouwde LED-spots in de bodem zorgen voor een stijlvolle en functionele verlichting.
Qua apparatuur is de keuken compleet uitgerust met Pelgrim inbouwapparatuur: een koel-vriescombinatie, oven met magnetronfunctie, 4-pits inductiekookplaat, een 60 cm brede wandschouw afzuigkap en een 45 cm brede vaatwasser.
Tekeningen
Deze keuken van 310 cm breed combineert een warme licht eiken uitstraling met praktische indeling en hoogwaardige apparatuur.
Het geheel wordt afgewerkt met een luxe granieten aanrechtblad en achterwand, een zwarte composiet onderbouw spoelbak en een bijpassende zwarte mengkraan.
Deze complete showroomkeuken is beschikbaar voor € 6.000,- (exclusief montage).














