Showroom keuken 6 – Exclusief houtfineer met wijnopstelling
Deze keuken in houtfineer combineert natuurlijke warmte met een luxe en eigentijdse uitstraling. De opstelling bestaat uit een royaal kookeiland, een indrukwekkende wijnpresentatie en een brede kastenwand.
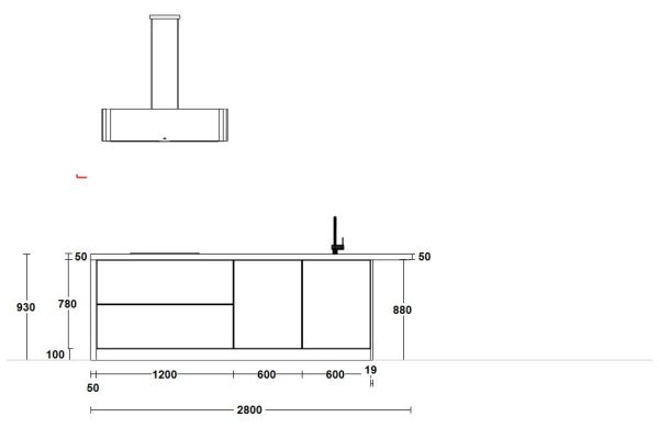
Het eiland is afgewerkt met een bijzonder 5 cm dik Diggels-blad, voorzien van een tegelspoelbak (50×40 cm) en een royaal werkblad van 280 x 100 cm. De keuken is uitgerust met een 70 cm brede 4-pits inductiekookplaat, een stijlvolle designlamp met geïntegreerde afzuiging en een vaatwasser.
Blikvanger is de wijnklimaatopstelling van 125 x 60 cm, compleet met wandrek en een luxe Diggels werkblad.
Tekeningen
De 335 cm brede kastenwand biedt uitzonderlijk veel bergruimte, waaronder een handige apothekerskast, verlichte vakken en nissen voor inbouwapparatuur. In de huidige uitvoering zijn deze nissen ingericht met een oven en inbouw koffiezetter, naast de koel-vriescombinatie.
Een keuken waarin luxe materialen, praktisch gemak en design perfect samenkomen.
Prijs: € 17.500,- (exclusief montage).


































