Showroomkeuken 7 – Zacht grijs met composiet accenten
Deze stijlvolle keuken in zachtgrijs laminaat biedt verrassend veel bergruimte op een compact oppervlak. De combinatie van slimme indeling, hoogwaardige materialen en subtiele verlichting maakt dit een moderne, praktische en sfeervolle keuken.
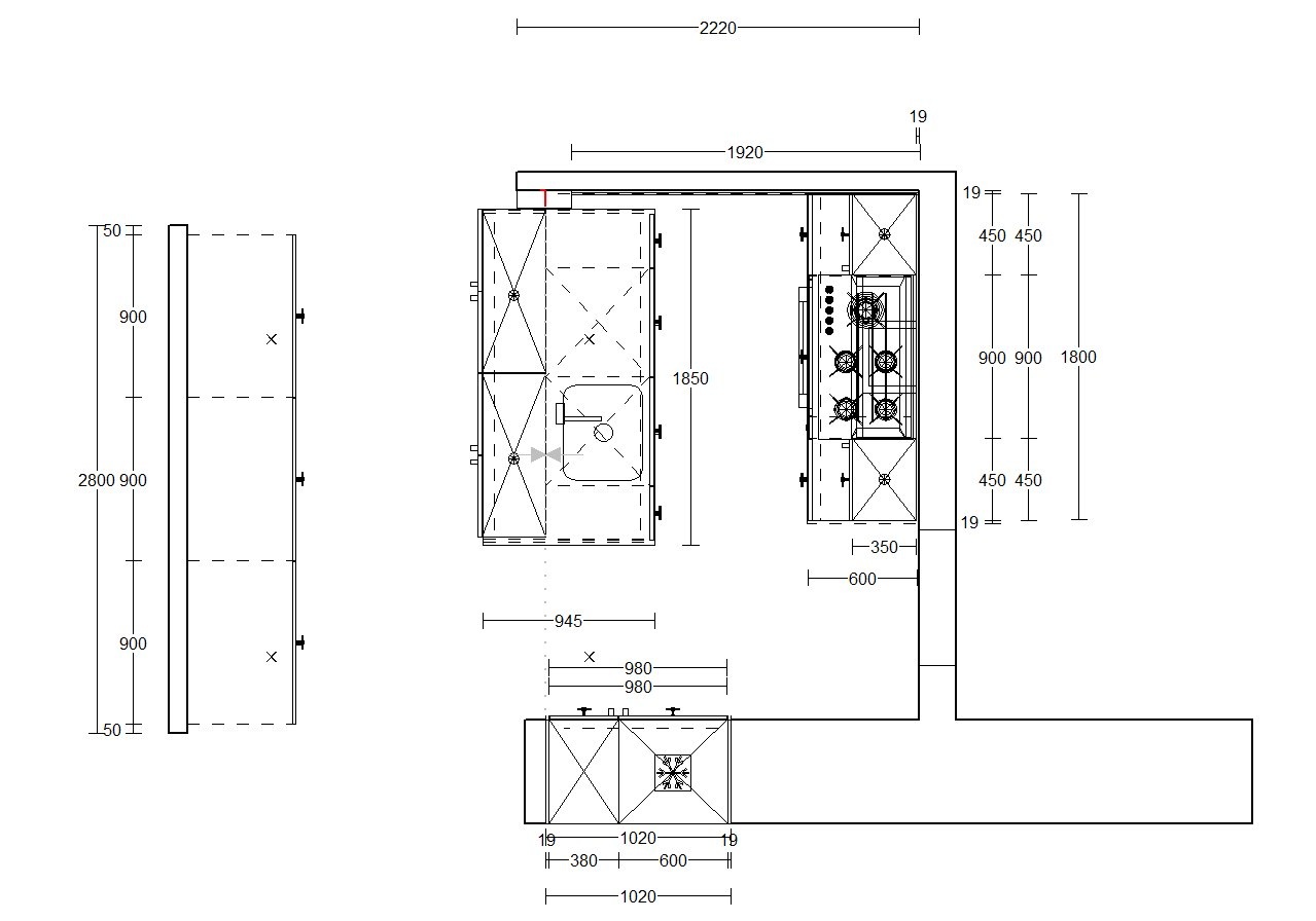
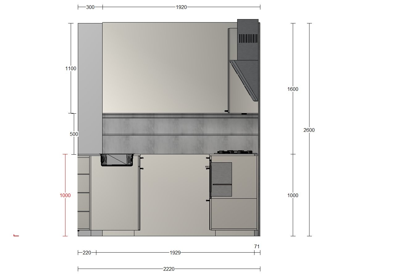
Het spoeleiland van 185 cm breed en 94,5 cm diep is voorzien van een spoelbak en een Atag vaatwasser, en aan de achterzijde bevinden zich elegante glasvitrine kasten met verlichting – perfect om servies of decoratie-items in uit te stallen. De werkbladhoogte van 100 cm zorgt bovendien voor een comfortabele werkhouding.
Tekeningen
Het kookgedeelte (183,8 cm breed en 60 cm diep) is uitgerust met een 90 cm brede Siemens oven, een 5-pits Etna inductiekookplaat en een 80 cm brede diagonale Pelgrim wandschouwafzuigkap. Twee extra hoge wandkasten met geïntegreerde LED-verlichting zorgen voor extra opbergruimte én sfeer.
Daarnaast bevat de keuken een hoge kast met Bosch koeler en vriezer, een hoge opbergkast en een open vak, samen 102 cm breed en 260 cm hoog.
De luxe composiet werkbladen maken het geheel af – duurzaam, strak en tijdloos.
Prijs: € 9.000,- (exclusief montage).






















